Transformez vos bureaux
Vous préparez un déménagement d’entreprise, un transfert de bureaux ou une réorganisation de vos espaces de travail ?
Nous vous proposons une solution globale pour vous accompagner dans l’optimisation de vos espaces et l’organisation de votre transition.
Un accompagnement structuré
Chaque projet est étudié avec une méthodologie précise :
• Analyse des besoins
• Macro et micro-zoning des espaces
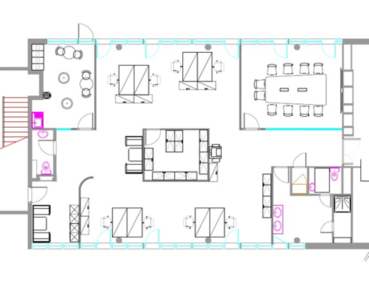
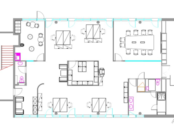
• Plans d’aménagement et modélisation 3D
• Choix ou revalorisation éco-responsable du mobilier
• Plans travaux
• Liste de transfert (occupants et matériel informatique)
• Phasage des travaux et du déménagement
Pourquoi associer déménagement et aménagement ?
Coordonner ces deux étapes permet de garantir :
• une organisation claire des postes et équipements
• une planification efficace des travaux
• une gestion optimisée du mobilier
• une reprise rapide de l’activité
Cette approche assure des espaces de travail adaptés aux équipes, plus confortables et mieux organisés.
Trois formules d’accompagnement (sur devis)
• Étude & Conception
• Ingénierie de transfert
• Accompagnement complet de A à Z
👉 Contactez-nous pour organiser votre projet de déménagement et d’aménagement professionnel.
